PRONJATO / Luxusní BYT 4+1/B, 155m2, Hradčanská
typ:Pronájem
cena:0 CZK
plocha:155 m2
velikost:4+1
lokalita:Praha 6
> dotaz na nabídku
> tisk
> přeposlat e-mailem
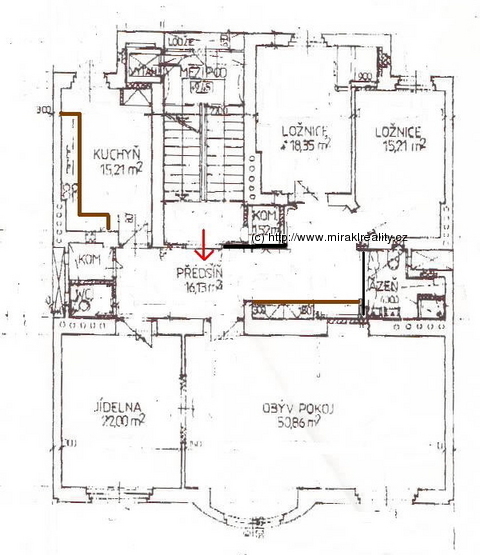
 Lokalita: Praha 6, Dejvice, u metra Hradčanská, 1 min na metro-ulice Mařákova; Doprava: veškerá; Objekt: ČD po kompletní rekonstrukci; Velikost bytu: 155 m2, 4+1 + 2 x komora + balkon, zahrada k užívání ve vnitrobloku; Podlaží: 3. patro s výtahem; Vybavení: bez nábytku, kompletní kuchyňská linka se spotřebiči, myčka, lednice, digestoř, varná deska, el. trouba, automat. pračka v komoře u kotle, vestavěné skříně v hale, alarm, v koupelně vana, sprchovací kout, bidet, WC, 2. toaleta pro hosty v hale s umyvadlem , v OP cca 55 m2 balkon , 2 x komora, nový výtah dvou osobový; Vytápění: etážové plynový KOMBINOVANÝ KOTEL; Podlahové krytiny: luxusní parkety, dlažba Telefon: ano, přípojka; Parkování: u domu na ulici; Zvláštnosti: nádherný byt pro rodinu se skvělou dostupností K dispozici: IHNED, dlouhodobě; Garáž (stání)lze najmout separátně v garážovém komplexu v Kafkově ulici. Platební podmínky: Platby měsíční, vratná kauce, provize RK ve výši 1 nájemného; PENB=G.


Fotogalerie: