REALIZOVÁNO / Prodej bytu 86 m2+TERASA 145 m2, Praha 9
typ:Prodej
cena:0 CZK
plocha:86 m2
velikost:3+kk
lokalita:Praha 9
> dotaz na nabídku
> tisk
> přeposlat e-mailem
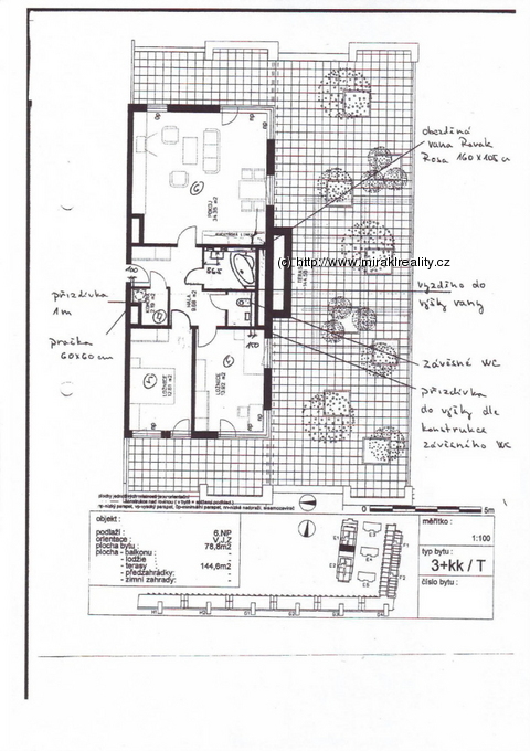
 Prodej bytu 3+kk/2x GS, OV, 6.NP, 85,70 m2 + terasa 145,60 m2, novostavba, Nová Harfa, P- 9, Vysočany, Prodej bytu 3+kk s nádhernou terasou + 2 garážová stání, OV, novostavba, komplex Nová Harfa, Praha 9 - Vysočany. Byt má podlahovou plochu 85,70 m2, terasu o výměře 145,60 m2, samostatnou komoru v podzemí komplexu o výměře 7,6 m2 a dvě parkovací místa v podzemních garážích, do kterých je přístup přes dálkově ovládaná garážová vrata. Bytová jednotka je umístěna v šestém nadzemním podlaží sedmipodlažní budovy.Byt má tři neprůchozí pokoje,samostatnou toaletu, koupelnu, halu a komoru s přípojkou na pračku. V koupelně je osazena rohová vana. Obývací pokoj, jehož součástí je i kuchyňský kout s přípravou pro instalaci kuchyňské linky, má velikost 34,5 m2. Dvě samostatné ložnice jsou o velikosti 14 m2 a 12,6 m2. V pokojích jsou nové dřevěné plovoucí podlahy, žaluzie a záclony, v koupelně, hale, komoře a na WC je dlažba. Okolo celého bytu se rozprostírá prostorná terasa (145,60 m2 ) , na kterou je vchod ze všech pokojů. Terasu lze díky své velikosti využít k vybudování zimní zahrady a posezení. Jsou na ní umístěny velké, dřevem obložené kontejnery se zeminou, kde je možnost vysázet zeleň. Výhled z terasy je do zeleně. Komplex Nová Harfa je ucelená lokalita se základní vybaveností, prodejnou potravin, obchodů, služeb, vše ve vzdálenosti max. několik desítek metrů od domu. Ve vnitrobloku je k dispozici dětské hřiště s pískovištěm.


Fotogalerie: