PRONAJATO / Byt 2+k.k., nezařízený, Nušlova ul., Praha 5
typ:Prodej
cena:0 CZK
plocha:45 m2
velikost:2+kk
lokalita:Praha 5
> dotaz na nabĂ­dku
> tisk
> přeposlat e-mailem
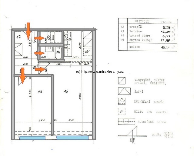
 Lokalita:Praha 5 (13) – NovĂ© Butovice (k.Ăş. StodĹŻlky), Nušlova ulice, BUS 3 minuty, Metro; Objekt: panelovĂ˝ dĹŻm ve vĂ˝bornĂ© kondici, po rekonstrukci a zateplenĂ­, nĂ­zkĂ© náklady na vytápÄ›nĂ­; Velikost bytu: 2+k.k., 45,86 m2 po kompletnĂ­ rekonstrukci vÄŤ. vyzdÄ›nĂ©ho jádra; Podlaží: 4. patro (5.NP), vĂ˝tah; VybavenĂ­: modernĂ­ novĂ© vestavnĂ© skřínÄ› v pĹ™edsĂ­ni, plnÄ› vybavená kuchynÄ› s lednicĂ­, mikrovlnou troubou, elektrickĂ˝m sporákem a myÄŤkou, nerezovĂ˝ dvou dĹ™ez, v koupelnÄ› sprchovacĂ­ kout, koupelnovĂ˝ nábytek, otopná ribstole, přípojka na praÄŤku, WC zvlášť, vše ve vĂ˝bornĂ©m stavu zánovnĂ­ nebo novĂ©, bezpeÄŤnostnĂ­ vstupnĂ­ dveĹ™e, vymalováno. VytápÄ›nĂ­: centrálnĂ­, taktéž dodávka teplĂ© vody; PodlahovĂ© krytiny:dlaĹľba, plovoucĂ­ podlahy, koberec v loĹľnici a OP; Telefon: ano, UPC; ParkovánĂ­:u domu na ulici; Zvláštnosti: velmi pÄ›knĂ˝ a dobĹ™e vybavenĂ˝ a Ĺ™ešenĂ˝ byt, vhodnĂ˝ pro mladou rodinu nebo pár. SklepnĂ­ kĂłje v suterĂ©nu domu, vĂ˝hled z bytu do volnĂ©ho prostoru a na sportovištÄ›; PENB =C. K dispozici: od října 2020, anebo dohodou, dlouhodobĂ˝ nájem, prvnĂ­ smlouva na 1-2 roky; PlatebnĂ­ podmĂ­nky: standardnĂ­, zálohy na domovnĂ­ sluĹľby a energie dle rozpisu SVJ.


Fotogalerie:

nový výtah
ParkovacĂ­ naproti domu
Vstup do bytu
Zbezpečená místnost na kola-zvenku na okně tak