PRONAJATO / Nádherný obchod Praha 2-Nusle
typ:Pronájem
cena:0 CZK
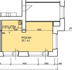
plocha:39 m2
velikost:jiný typ -atyp
lokalita:Praha 2
> dotaz na nabídku
> tisk
> přeposlat e-mailem
 Lokalita: Praha 2,Nezamyslova ulice; Doprava: obchod na tramvajové lince, frekventovaná ulice; Objekt: obchodní prostor po kompletní rekonstrukci, v přízemí činžovního domu; Velikost obchodu: 38,5 m2, JV, počet výkladů 3, propojené původně dva menší obchody, nyní jeden celek, 2 možné vstupy ponechány; jednotlivé výměry 17+21,5 m2; Podlaží: přízemí, vstupy z ulice; Vybavení: závěsné rampové osvětlení, separátní WC, vše po rekonstrukci, čajová kuchyňka s teplou vodou a dřezem, repase výkladů s tepelně izolačními skly, nové dveře, venkovní bezpečnostní rolety-neprůhledné-kov; samostatné měřiče elektřiny a vody, elektřina může být 3 fázová; Podlahové krytiny: nová dlažba - Taurus šedá; Telefony: přípojka O2; Vytápění: centrální ústřední plynové; Parkování: na ulici; Zvláštnosti: dobrá poloha, možnost získání skladovacích prostor v suterénu domu (suché, bezpečné předměty), obchod je citlivě zrekonstruován se zachováním původních dobových prvků, vše vkusné a v dobré kvalitě; K dispozici: ihned, dlouhodobě – s garancí min 2 let; Využití: veškerá perspektivní obchodní činnost, ne večerní a noční prodejna; Platební podmínky: standardní, zálohy na služby: topení=600,-Kč/prostor/měsíc, služby=400,-Kč/prostor/měsíc, elektřinu lze plně převést na nájemce nebo hradit zálohově majiteli=cca 1.000,-Kč/měs/prostor; PENB u budovy není zpracován, uvádí se kategorie G.


Fotogalerie: